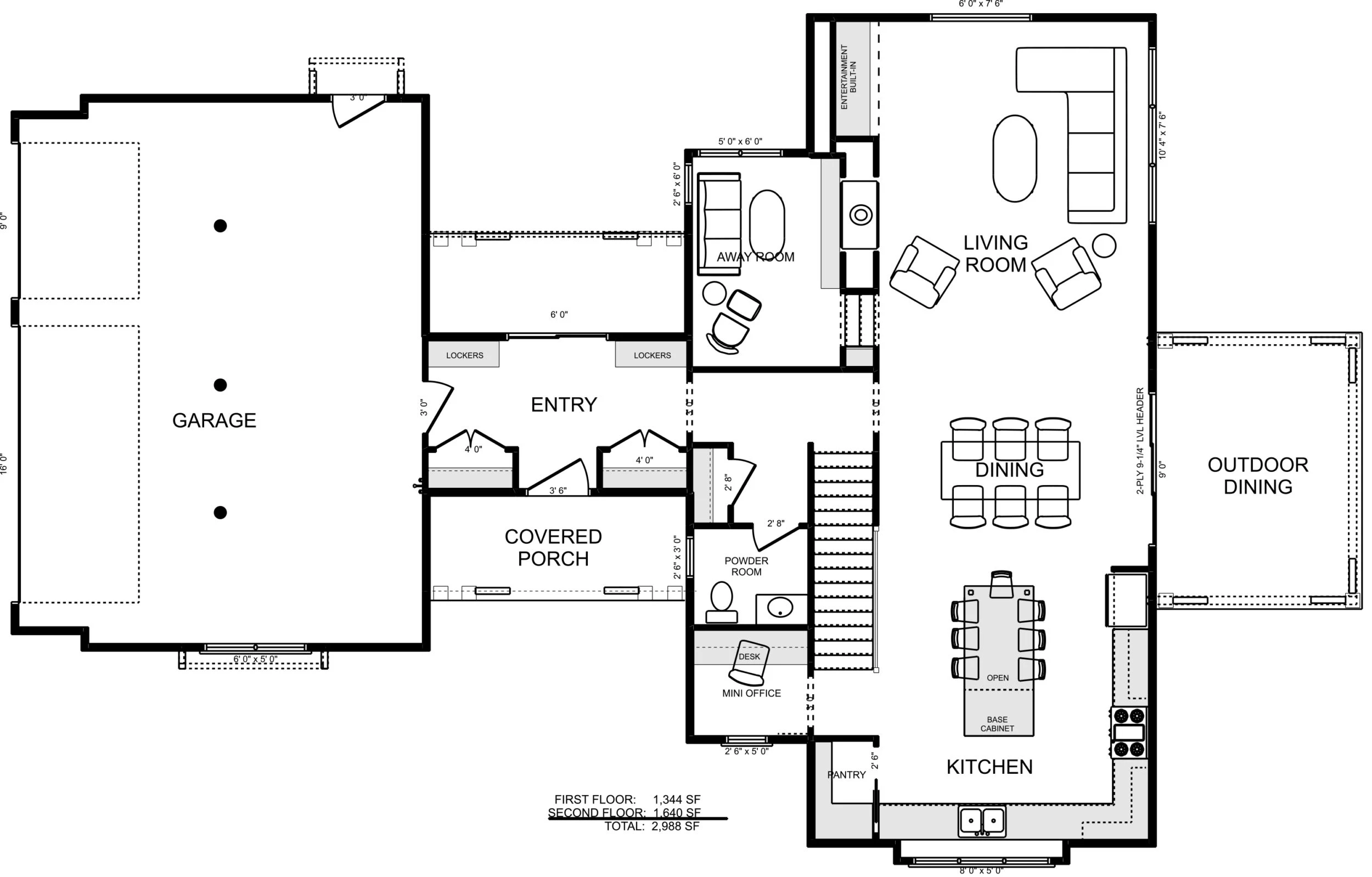
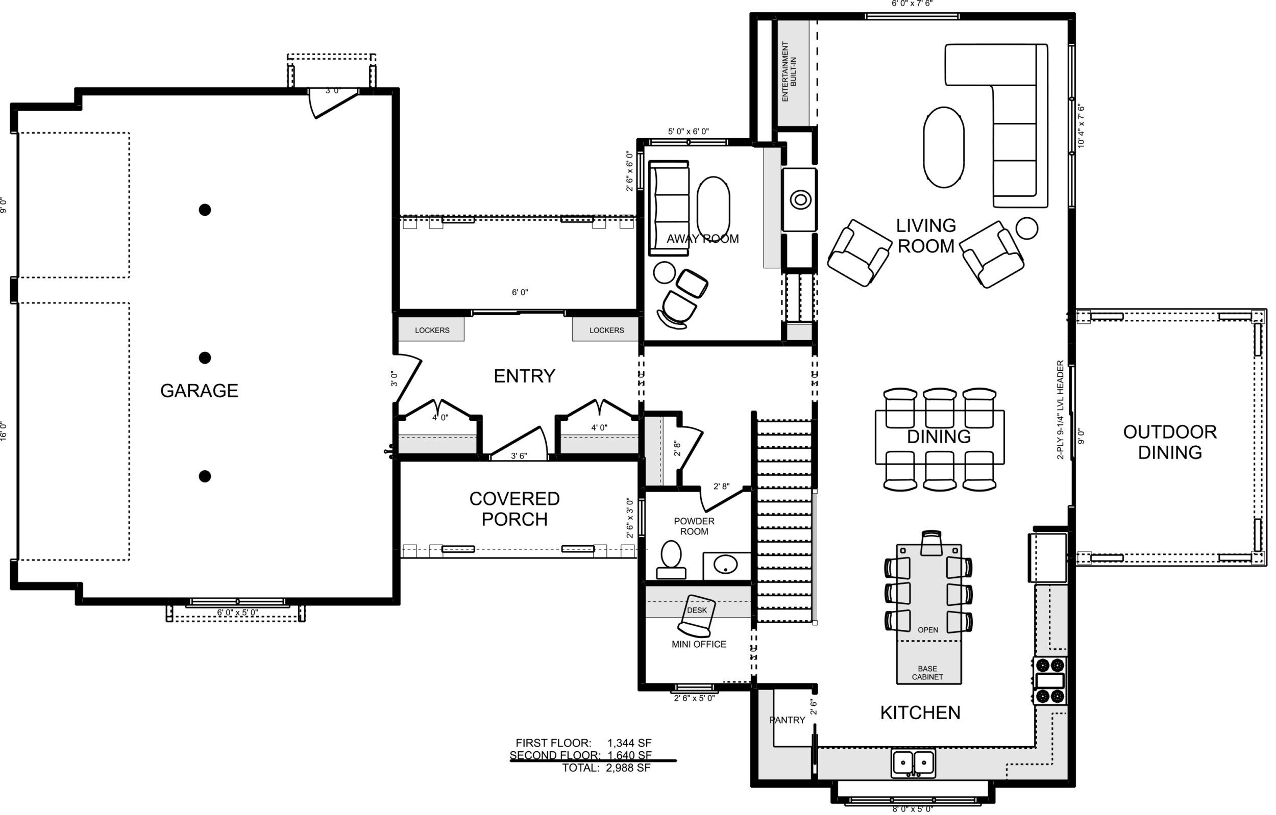
The Millbrook is a nod to the past rooted in classical design but updated for the way we live today. Our view of Modern is no longer cold and futuristic design. The new modern exudes warmth and thought. We love the open modern layout of this plan combined with the away space tucked in off the great room.
DETAILS
Style: Two Story
Starting at: $515,785
- 4 bds
- 3.5 ba
- 2,988 sqft
*Photos & Renderings may show options not included in base pricing
Household Highlights
- Open Living Space
- Modern Pantry Larder / Wine Storage
- Covered Porch off of Kitchen
- Sunken Away Space off of Great Room
- Flexible Second Floor with Optional Mother in law Suite
- Two car garage can convert to side-load and three, or a Detached 2 car garage can be added to create a private backyard
Make it Yours
Create a customized house plan with the
help of our dedicated Design Team.
YOUR IDEAS
+
OUR DESIGNERS
=
YOUR FOREVER HOME



















