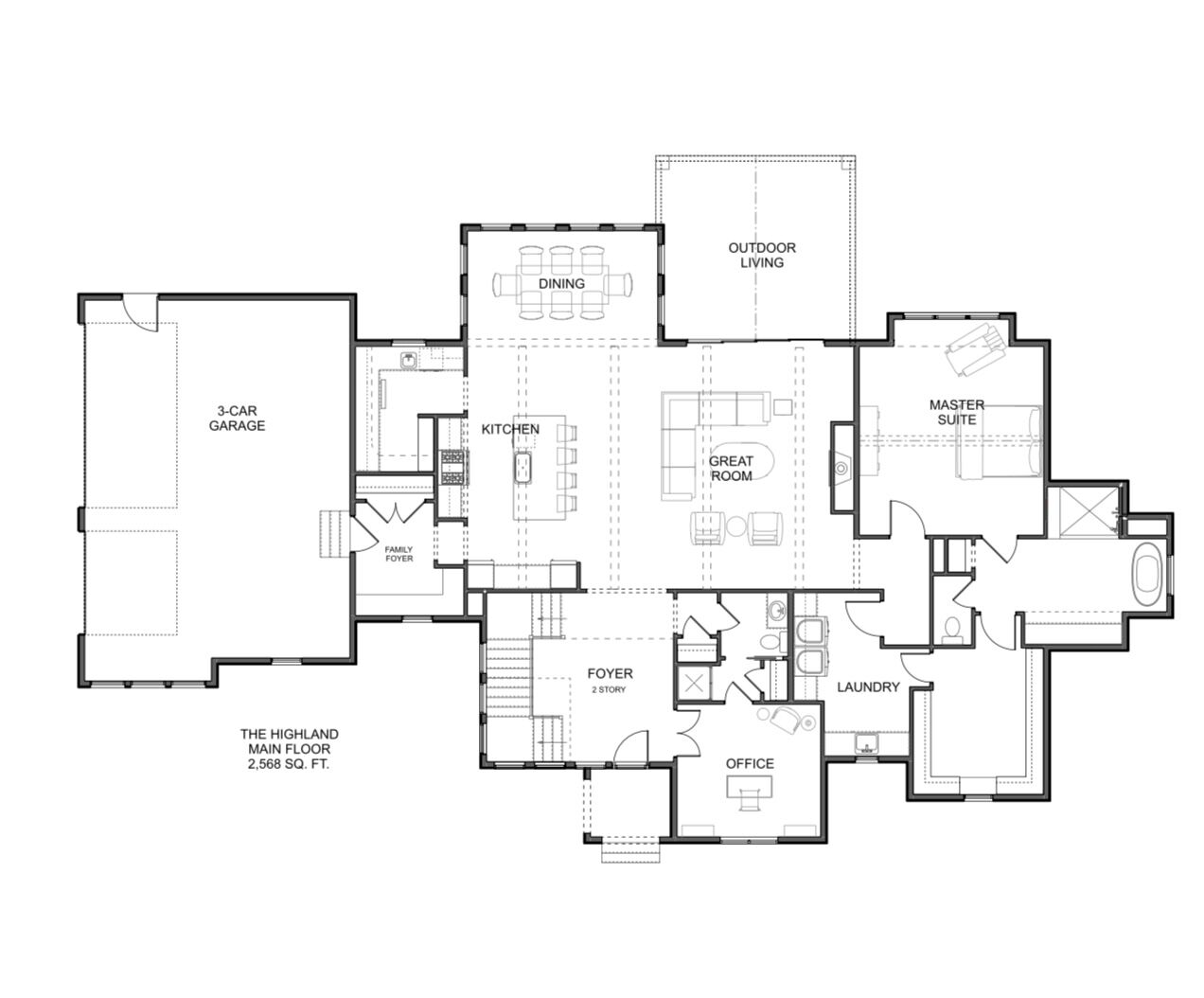
The Highland plan is featured as our 2024 Galena Model Home and is Now Open for Tours! This house is designed to be the ultimate family home for the Modern Family of 2024. The centralized open kitchen connects to the Great Room, dining area, and an expansive back kitchen. An eye catching feature is this home are the large windows by the staircase that allow for plenty of natural light to fill the room.
DETAILS
Style: First Floor Master
Starting at: $699,092
- 5 bds
- 4 ba
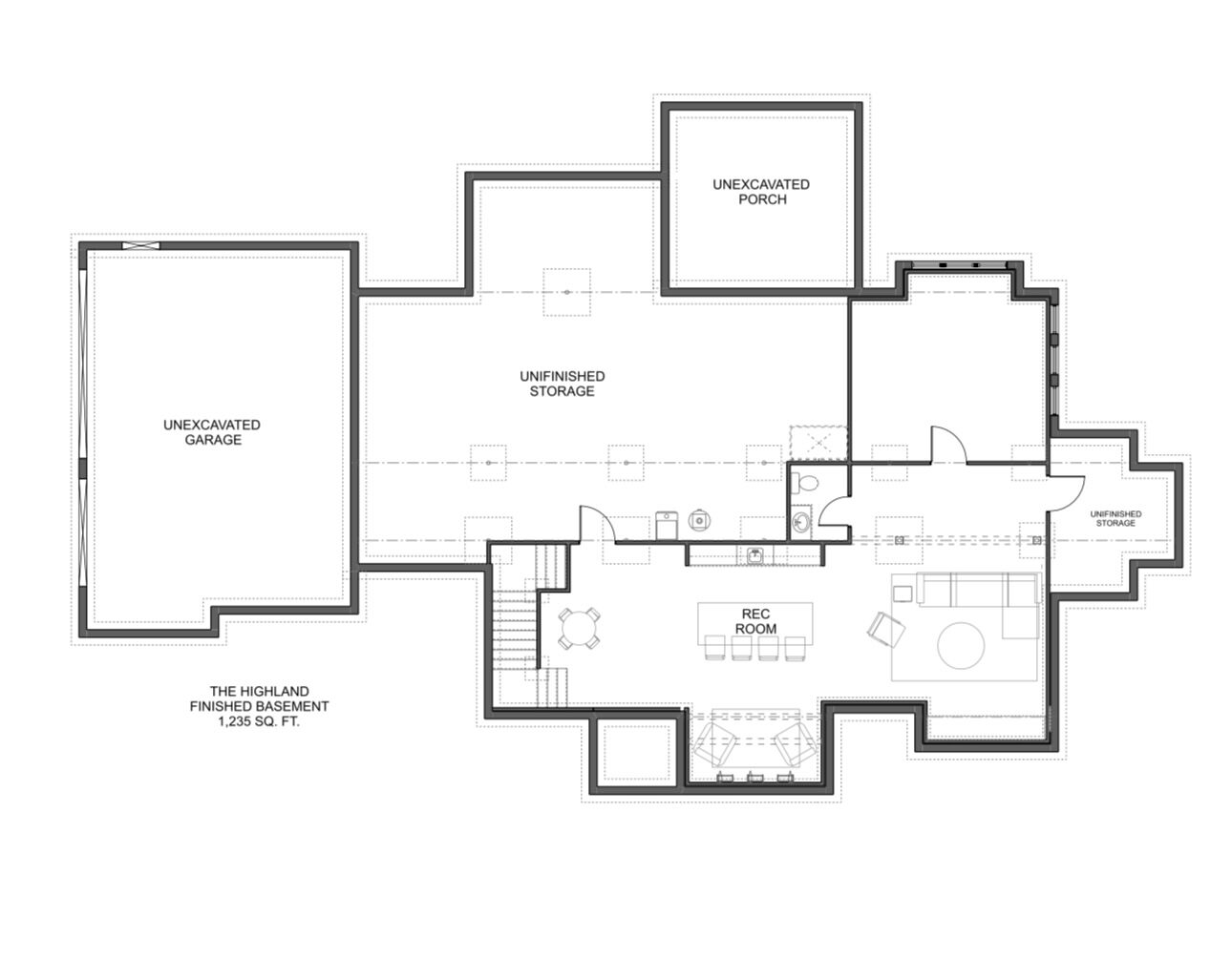
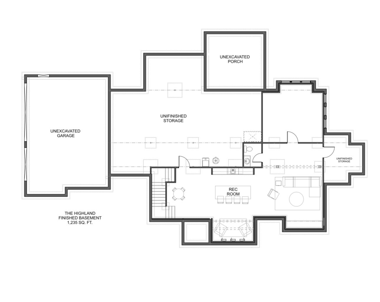
- 3,774 sqft
*Photos & Renderings may show options not included in base pricing
Household Highlights
- Back kitchen (scullery) for enhanced storage and meal prep
- First-floor master suite for convenience
- Large covered patio
- Bonus area in basement for versatile use
Make it Yours
Create a customized house plan with the
help of our dedicated Design Team.
YOUR IDEAS
+
OUR DESIGNERS
=
YOUR FOREVER HOME












