OLD WORLD CUSTOM HOMES
Home Spotlight

Modern Shingle Style in Canton, Ohio
Situated on a rolling 1-acre lot and taking the influence from a lakeside town in Minnesota, our client's main goal was to create a timeless design that provided all the enjoyments of a contemporary retirement lifestyle, while reminding them of their old home town.
WHERE IT ALL BEGINS
Inspiration
With the owners' relocation from Minnesota, the exterior styling of the home was inspired by the shingle style architecture seen on Lake Minnetonka. To start, our design team was provided pictures of several homes they had toured over the years. A key theme emerged when looking through these inspirational photos: the need to capture the natural beauty of the exterior by strategically placing large windows in key living spaces throughout the home.

GETTING THE BALL ROLLING
Style Guide & 3D Model
Pinterest, Houzz, Television, magazines, you name it - we all draw inspiration from our everyday life and idea sharing is paramount to designing a plan that uniquely suits our client. In this instance, we were presented photos of shingle style and the craftsmen aesthetic that we used as the inspiration to build the 3D model.

THE CONCEPT
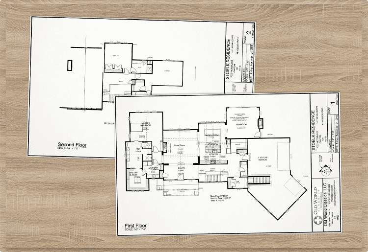
Floor Plan
The heart of the home is the combined kitchen, dining and porch area. The open flow between these spaces provides ample space when entertaining, yet with the use of timber beams and square headers, each space remains defined and cozy for everyday living. There was also a keen focus on the volume of each space, so applying a 2 story vault in the great room and a three story open staircase provided the right amount of drama to go along with the open floorplan.

YOUR DREAM REALIZED
Forever Home
Our homes are more than just lumber and drywall. They are a reflection of the personality we try to capture in each unique home design. By taking the inspiration from homes around Lake Minnetonka and applying it to a fresh new design, our clients were thrilled with how their home turned out and we couldn’t agree more! Welcome to your forever home!
Visit Our Local Model Homes
In Person, on Your Schedule

Cleveland
Model
Modern layout






