The Watson Farmhouse is one of our new farmhouse designs and served as our 2015 Model Home. We designed this plan with your family in mind. It is a delicate balance to make rooms the right size so that they feel comfortable for every day living but at the same time be open enough to feel comfortable for larger family gatherings. We think this home has the perfect balance and we are excited to see what you think!
Household Highlights
- Large Kitchen designed for those that love to cook. Open Back Pantry behind kitchen for easy access to everything you need.
- Hearth Room and family Dining located right in the kitchen.
- Family Foyer with custom-built lockers.
- Dining Room in Front of home that can easily be converted to a study if you don't need the dining space.
- Large master suite with Spa like Master Bath. Large Walk-in Shower with natural light into the shower.
- Perfect sized Master Suite area with Large Closet & Island.
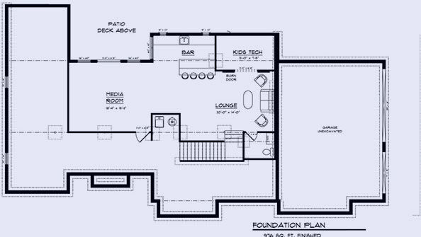
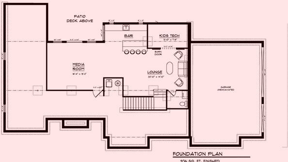
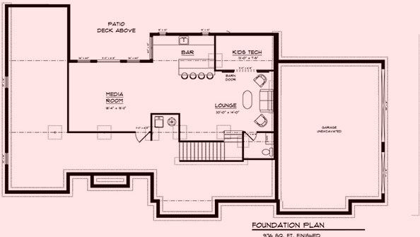
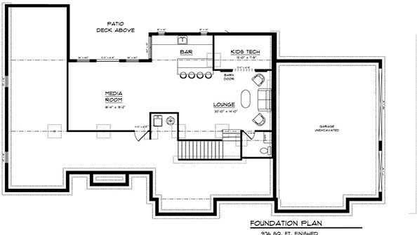
- Oversized 3 car Garage.
- Great Second Floor Layout with 3 bedrooms up. Unique shared bath design with separate vanities for each bedroom.





