Greenbrier

Designed to be the ultimate family home for the Modern Family of 2022. The centralized open kitchen connects to the Vaulted Great Room, the Kid’s Study Hall, and an expansive back kitchen.  Come on out and see our first Model Home in the Columbus area!

DETAILS

Style: First Floor Master

Starting at: $813,450

  • 4 bds
  • 4.5 ba
  • 4,930 sqft

 

*Pricing based on building in Stark County, Ohio

*Photos & Renderings may show options not included in base pricing

Household Highlights

  • First Floor Owner’s Suite
  • Dedicated Office & School Space
  • Two-Story Great Room
  • Finished Basement with Pub & Media Room
  • Wrap Around Covered Back Porch
  • Butlers Pantry

ELEVATIONS

Front

https://mpembed.com/show/?m=Ac9wm3iy2hM&play=1&minimap=1

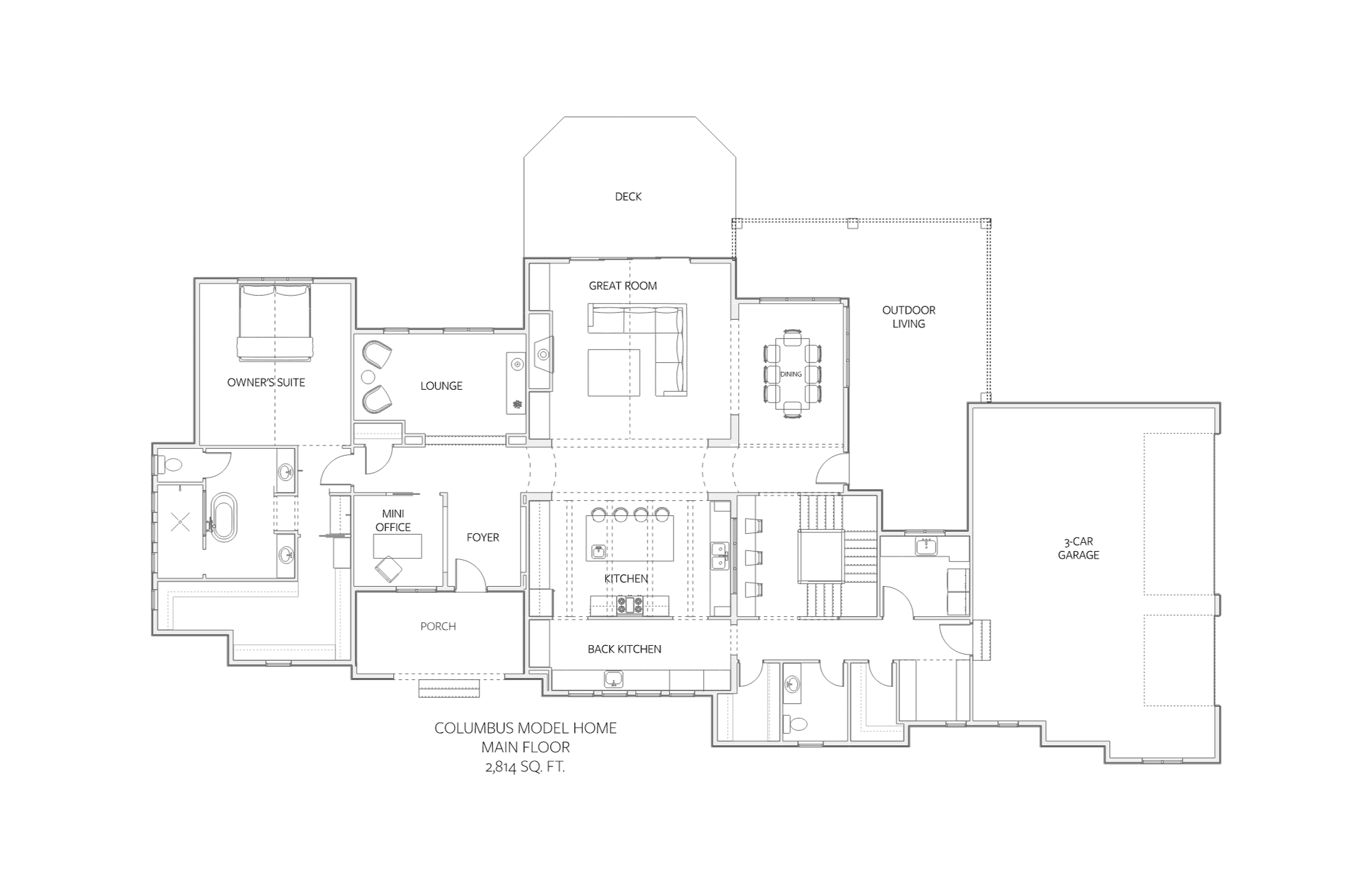
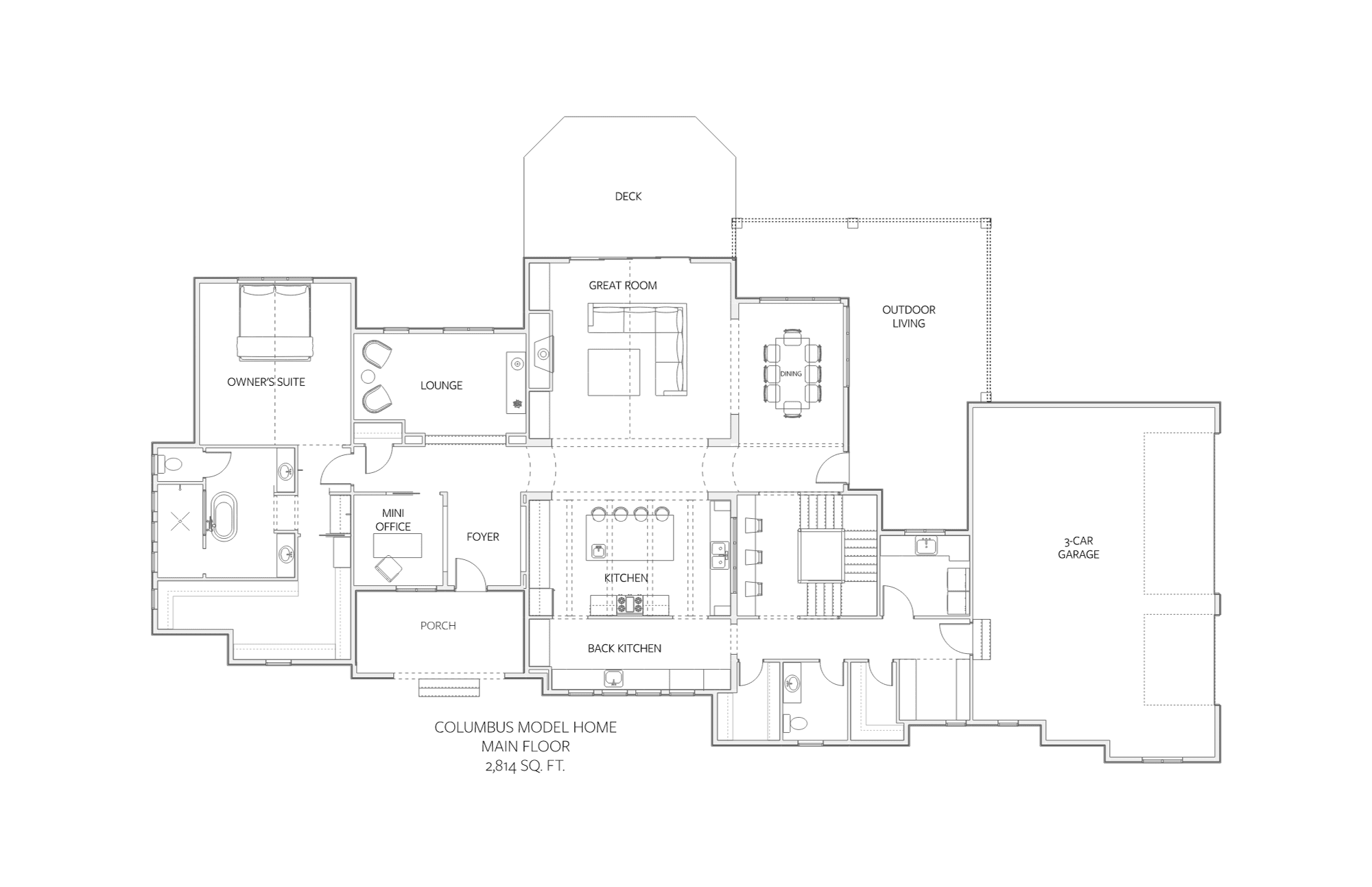
FLOORPLANS

Main Floor Plan

Second Floor

See Our Other House Plans