OLD WORLD CUSTOM HOMES
Home Spotlight

Entertainers Dream in Cleveland, Ohio
This Sleek Modern English home is built for the owners casual everyday living that can easily transition to Party Central at night.
The Old World design and construction team collaborated with Laura Yeager Smith Design Studio to bring the owners vision to life.
Here is their story!
WHERE IT ALL BEGINS
Inspiration
Situated on a large 5 acre wooded lot it was important to blend the outdoor environment with the interior living space. Working with a limited color palette the design team employed the use of texture and natural wood tones to add interest to the space.
Clean and simple colors allow the wood tones to glow adding warmth and tying it back to the natural outdoor environment.

GETTING THE BALL ROLLING
Style Guide & 3D Model
After meeting with our clients and discussing their wishes and inspiration photos, we get a better feel for the aesthetic they are looking to achieve in their new home. Below are a few of the inspiration photos we used for our design concept and final 3D model.

THE CONCEPT
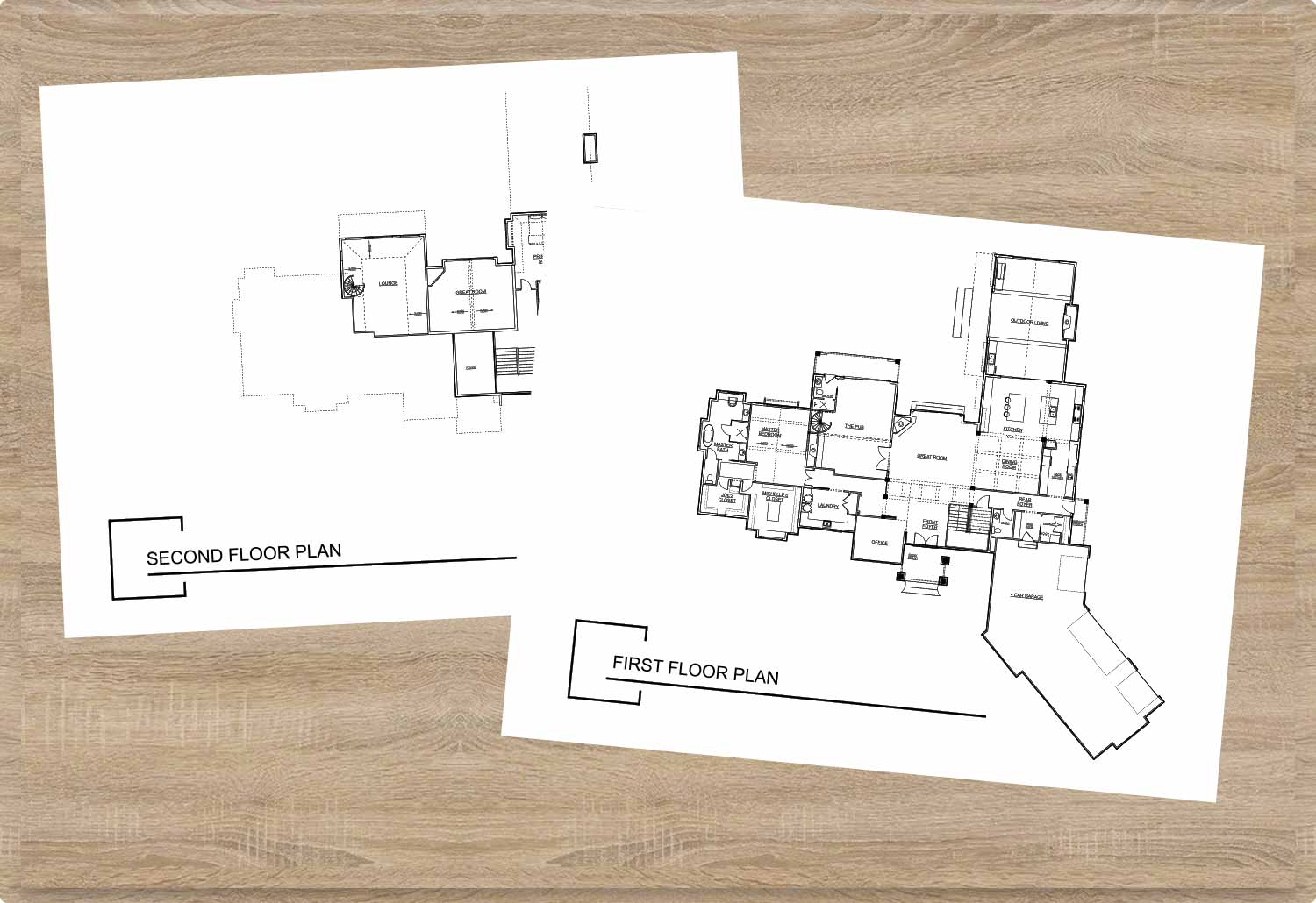
Floor Plan
The layout was designed to be functional for everyday casual family living and eventually adapt to one floor living as they become empty nesters. And did we say this family loves to entertain? Central to the plan was connecting the outdoor pool deck with several entertaining spaces throughout the main floor.
The large eat-in kitchen opens into the 4 season outdoor living space through a 16' wide cascading pocket door. The outdoor living space is perched overlooking the wooded ravine that makes you feel like you are high in the tree tops. In the Summer months the 2 bar tops have glass garage doors that open up to outdoor bar seating.
The real showstopper on this home is the central 2 story English Pub off the great room. The ultimate spot to relax with a Bourbon by the two story Metal Clad woodburning fireplace, or ascend up spiral stairs to chill with a group of friends in the second floor loft.
Although this home is large we love how the design team collaborated to create intimate spaces that works both for everyday living and for entertaining large groups of friends.

YOUR DREAM REALIZED
Forever Home
Our clients trusted our design vision and were extremely enjoyable to work with allowing their home to flow easily from initial concept to their first pool party!
Visit Our Local Model Homes
In Person, on Your Schedule

Cleveland
Model
Modern layout
















